Junction Recovery & Wellness Centre – Selective Interior Demolition

Vancouver Coastal Health | 6,000 Sq Ft Commercial Demolition

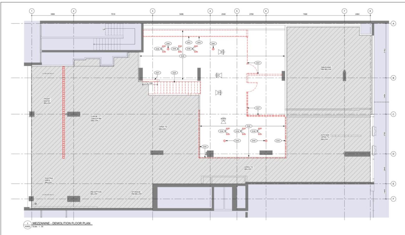
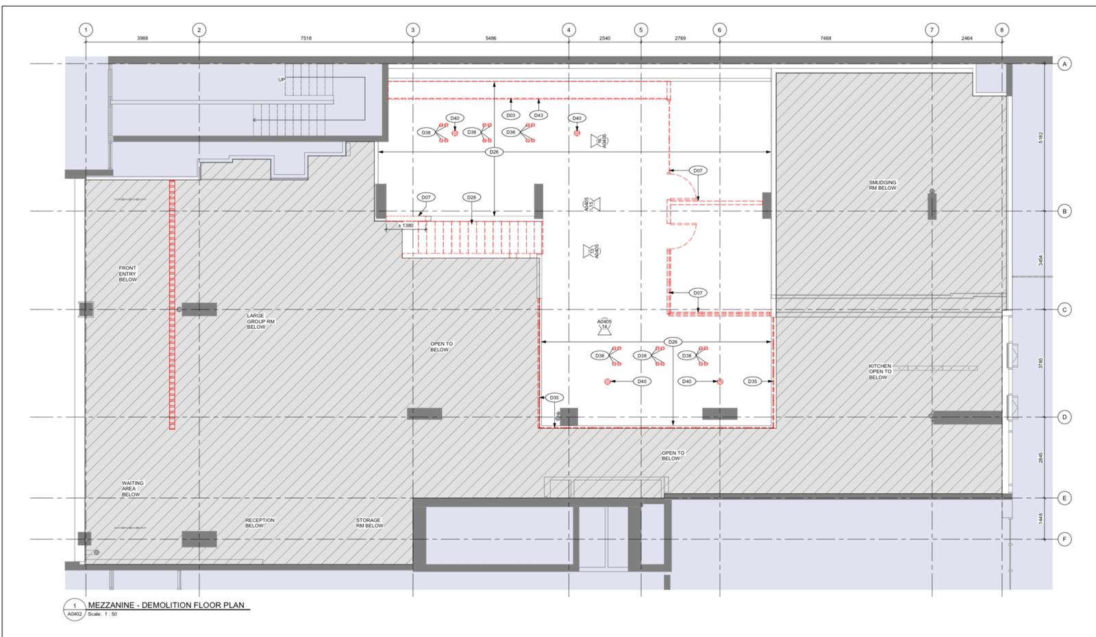
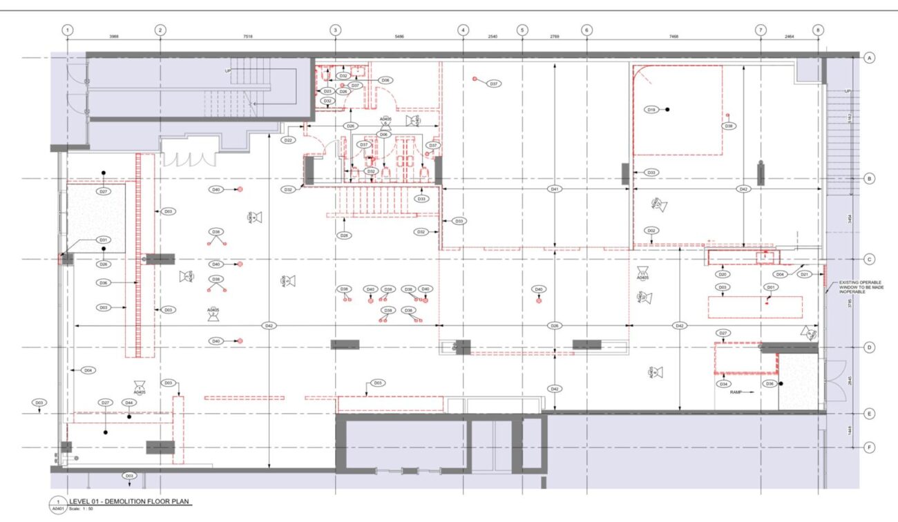
XMoose Demolition completed approximately 6,000 square feet of selective interior demolition at the Junction Recovery & Wellness Centre for Vancouver Coastal Health.

This project involved a variety of demolition scopes, including removal of CMU (concrete block) walls, multiple flooring systems, high-rise ceiling assemblies, wall panels, railings, and a structural metal stair system. The metal stair was carefully dismantled using controlled gas cutting methods to ensure safety and precision.

Given the active institutional environment and the nature of the facility, the work required strict adherence to safety protocols, dust control measures, and coordinated material handling.

The project demonstrates XMoose Demolition’s capability in handling complex selective demolition within healthcare and institutional settings, delivering clean, organized, and professionally managed site preparation for renovation and redevelopment.